Wir garantieren Ihnen den besten Preis für jede verfügbare Yacht. Sollten Sie anderswo einen besseren Preis finden, lassen Sie es uns wissen. Wir werden diesen unterbieten.
Suche
Kontakt
Dieses Boot wird ohne Skipper vermietet.
Rivo Campi 460 | Capri
- Baujahr2023
- Tiefgang0.8 m
- Personen6
- Breite4 m
- Schlafplätze4 + 2
- Motor2x30 hp 44.7 kW
- Kabinen2
- Treibstofftank80 l
- Toiletten1 1 Elektrische Toilette
- Wassertank650 l
- Abfalltank650 l
- Länge12.5 m
Ausstattung
Navigation und Sicherheit
- Bugstrahlruder
- Außen-GPS-Plotter
- Stromgenerator
- Kartenplotter im Salon
- Solarmodule
- Flybridge
- Teakdeck
Salon und Kabinen
- Klimaanlage
- Dusche
- Kühlschrank
- Abfalltank
- Herd
- Heizung
- Küchenutensilien
- Ofen
- Spülbecken
- Gefrierschrank
- Kaffeemaschine
Entertainment
- Soundsystem
- Innen-Lautsprecher
- Flachbildschirm
- Badeplattform
Beschreibung
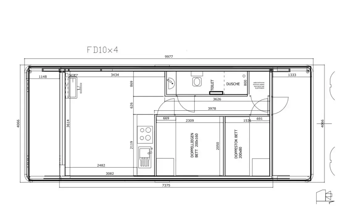
Das Hausboot Rivo Campi 460 Capri wurde 2023 gebaut und liegt im Yachthafen Marina Buchholz, Deutschland.
Der Wohnbereich dieses Hausboots umfasst 2 Kabinen und bietet Platz für 6 Personen. Die Ausstattung beinhaltet 1 toilette sowie eine Dusche.
Dieses Hausboot ist mit Solarmodule, einem Kartenplotter im Salon und einem Bugstrahlruder ausgestattet. Bei kaltem Wetter sorgt eine Heizung. Ein Flachbildschirm, ein Soundsystem, eine Flybridge und Innen-Lautsprecher sind ebenfalls vorhanden.
An Bord befindet sich eine Küchenzeile mit einem Ofen, einem Herd, einem Spülbecken und einem Küchenutensilien die das Kochen erleichtern. Eine Kaffeemaschine, ein Gefrierschrank und ein Kühlschrank vervollständigen die Ausstattung.
Dieses Hausboot wird von Marina Buchholz betrieben und von unseren Kunden mit 8.5/10 bewertet.

Charterunternehmen
Beliebteste Ausstattungen
Kabinen
- 2x
Doppelkabine
- 2x
Betten im Salon
- 1x
Toiletten 1 Elektrische Toilette
Detaillierte Informationen
Charterunternehmen
Marina Buchholz | #28 von 77 Charterunternehmen in Deutschland
Stornierung / Zahlungsbedingungen
Die Stornierungs- und Vorauszahlungsbedingungen hängen von Ihrer Auswahl ab. Bitte überprüfen Sie die Zahlungsbedingungen bei der Auswahl des oben genannten Preises. Preise anzeigen
Welchen Bootsführerschein benötige ich?
Haustiere
Haustiere sind willkommen. Zusätzliche Gebühren können anfallen.
Vom Charterunternehmen akzeptierte Zahlungsoptionen
Bargeld
Hafen-Informationen
Marina Buchholz befindet sich in Buchholz, Deutschland. Sie liegt 158 km vom nächstgelegenen Flughafen entfernt.
Marina Buchholz bietet viele Vorteile für Segler: Toiletten und Duschen.
Es gibt auch ein Restaurant.
Alle Liegeplätze haben einen Wasseranschluss und Elektrizität.
Häufig gestellte Fragen
Welche Lizenzen benötige ich, um das Boot Rivo Campi 460 | Capri zu mieten?
Um das Boot Rivo Campi 460 | Capri zu mieten, benötigen Sie einen gültigen Standard-Segelschein. Sie können die Gültigkeit Ihrer Lizenz jederzeit bei uns überprüfen.
Was ist ein Transitlog?
Ein Transitlog ist eine obligatorische Gebühr, welche die Reinigung, Lizenzgebühren und Dokumentvorbereitungskosten enthält.
Was beinhalten die Zusatzkosten?
Sie finden die zusätzlichen Kosten aufgelistet als obligatorische Extras in jedem Bootsprofil. Sie sollten auch die Liegeplatzkosten, Benzin und Lebensmittelkosten während Ihres Segelurlaubs berücksichtigen.
Welche Zahlungsmethoden gibt es vor Ort für Dienstleistungen & Extras?
Die Extras können vor Ort nur in bar bezahlt werden.
Welche Unterlagen erhalte ich von Boataround nach der Reservierung?
Sie erhalten eine unmittelbare Buchungsbestätigung und den Charter-Vertrag. Nachdem die Reservierung bezahlt wurde, erhalten Sie die Crew-Liste, die Bordkarte und Informationen zum Hafen.
Wie kann ich meine Reservierung stornieren?
Bitte kontaktieren Sie unseren Kundenservice unter +49 30 31 196 314 oder per E-Mail info@boataround.com. Wir werden uns umgehend um Ihr Anliegen kümmern.
Ist das Boot Rivo Campi 460 | Capri versichert?
Jedes Boot, welches auf boataround.com aufgelistet ist, ist versichert.
Was ist eine Kaution?
Die Kaution ist der Geldbetrag, welcher potentielle Schäden am Boot absichert. Dieser wird auf Ihrer Kreditkarte vorautorisiert.
Kann das Boot Rivo Campi 460 | Capri mit oder ohne einen Skipper gemietet werden?
Das Boot Rivo Campi 460 | Capri kann nur als Bareboat gemietet werden.






















